¿Cómo se determina la Carga Dinámica Total? La Carga Dinámica Total (CDT) es la suma de 2 partes, la Carga Estática y la Carga Dinámica.
Carga Estática
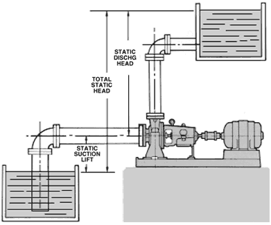
La Carga Estática representa la resistencia en un sistema de bombeo antes de que el líquido entre en movimiento. El principal componente en la carga estática es la diferencia de elevación entre:
La superficie del líquido en la succión.
La superficie del líquido en la descarga.
La Carga Estática es responsable también de la diferencia de presión entre el punto de succión y el punto de descarga. La Carga Estática no varía con la capacidad.

Ejemplo # 1, Carga Estática de la bomba (succión ahogada o positiva):


Ejemplo # 2, Carga Estática de la bomba (succión elevada o negativa):


Ejemplo # 3, Carga Estática de la bomba (succión ahogada o positiva):


La Carga Dinámica
La Carga Dinámica representa la resistencia de un sistema de bombeo mientras el fluido bombeado está en movimiento. Por lo que, las perdidas en la carga dinámica son aquellas que se crean una vez que el fluido empieza a desplazarse a través del sistema.Estas pérdidas son debido a la fricción; comúnmente llamadas Pérdidas de Fricción. Las pérdidas de la carga dinámica están en función del flujo.

Las pérdidas de la carga dinámica están hechas de dos partes:
Al comienzo, cada componente del sistema contribuye a las pérdidas de la carga dinámica a través de las pérdidas por fricción.

Siguiendo con, acelerar el fluido bombeado de cero a su velocidad final, requiere de energía. A esto, se le llama – Pérdida de carga por velocidad.
Perdidas de carga por Fricción
Así como las pérdidas de carga por fricción aumentan drásticamente con el aumento de flujo.
De igual forma existe una tabla típica de pérdidas por fricción para tubería muestra las pérdidas de fricción en función del flujo, diámetro de tubería y longitud.
Hay tablas para diferentes materiales de tubería.

Cada componente de un sistema de bombeo va asociado pérdidas por fricción

Las tablas de pérdidas por fricción se pueden obtener del fabricante del componente o de otras fuentes de referencia. Las pérdidas por fricción son en función de la capacidad y el componente tamaño
Ejemplos:
Ejemplo # 1, Perdida por fricción en tubería de 2” de diámetro, Succión negativa.

Longitud equivalente de componentes: 3 codos = 3 x 3.1 = 9.3’
Longitud de tubería = 4’ + 4’ + 2’ + 20’ + 20’ + 18’ + 20’ = 88’
Total longitud de tubería = 9.3’ + 88’ = 97.3’
Total de pérdidas por fricción= 97.3x (17.4/100) = 16.9’
Donde la Perdida de fricción en un tubo de 2” es de 17.4’ en cada 100 pies de tubería.
Ejemplo # 2, Perdida por fricción en tubería de 2” de diámetro, Succión positiva.

Longitud equivalente de accesorios: 2 codos = 2 x 3.1 = 6.2’
La Longitud de tubería = 2 0’ + 20’ + 18’ + 20’ = 78’
Longitud total de tubería = 6.2’ + 78’ = 84.2’
Total de perdidas por fricción = 84.2’x (17.4/100) = 14.65’
La Carga Dinámica Total del sistema es simplemente sumar la carga estática y la carga dinámica.
Ejemplo # 1, Carga dinámica total, succión negativa:

La Carga estática = 24’
y, Carga Dinámica:
● Friction losses = 16.9 ’
●Nozzle = 9.2’
CDT = 24’ + 16.9’ + 9.2’ = 50.1’
Ejemplo # 2, Carga dinámica total, succión positiva:
LaCarga estática = 3’

y, Carga Dinámica:
● Friction losses = 14.65 ’
●Nozzle = 9.2’
CDT = 3’ + 14.65’ + 9.2 = 26.85’
FESMEX BLOG / Expertos en HVAC y Equipo de Bombeo
En Fesmex Mexicali nos enfocamos en buscar las mejores soluciones en HVAC y Manejo de Fluidos para nuestros clientes. Por lo que, contamos con un amplio catálogo de soluciones como: Accesorios HVAC, Cajas VAV, Difusores, Louvers, Puertas de Acceso, Underfloor, Ventiladores Comerciales, Actuadores, Dampers, Fan & Coils, Monitoreo y Control, Rejillas y Válvulas HVAC.
En Manejo de Fluidos puedes encontrar: Bombas Centrífugas, Interruptores de Nivel, Accesorios de Bombeo, Bombas Sumergibles, Equipo Contra Incendio, Bombas Tipo Turbina, Sistemas de Alarma, Controladores de Frecuencia Variable, Bombas Centrifugas Verticales, Booster Packs y Mezcladores.
Fesmex en Redes Sociales
Siguenos en nuestras redes sociales para conocer contenido exclusivo acerca de nuestros productos, las actividades de nuestro personal y otra noticias relacionadas que te pueden interesar.
Instagram | Facebook | LinkedIn | Youtube.
Fesmex Mexicali en YouTube
Acompañanos a ver nuestros videos en el canal de youtube, donde hablamos de temas relacionados a la aplicacion de nuestros productos.